产品中心
PRODUCT CENTER
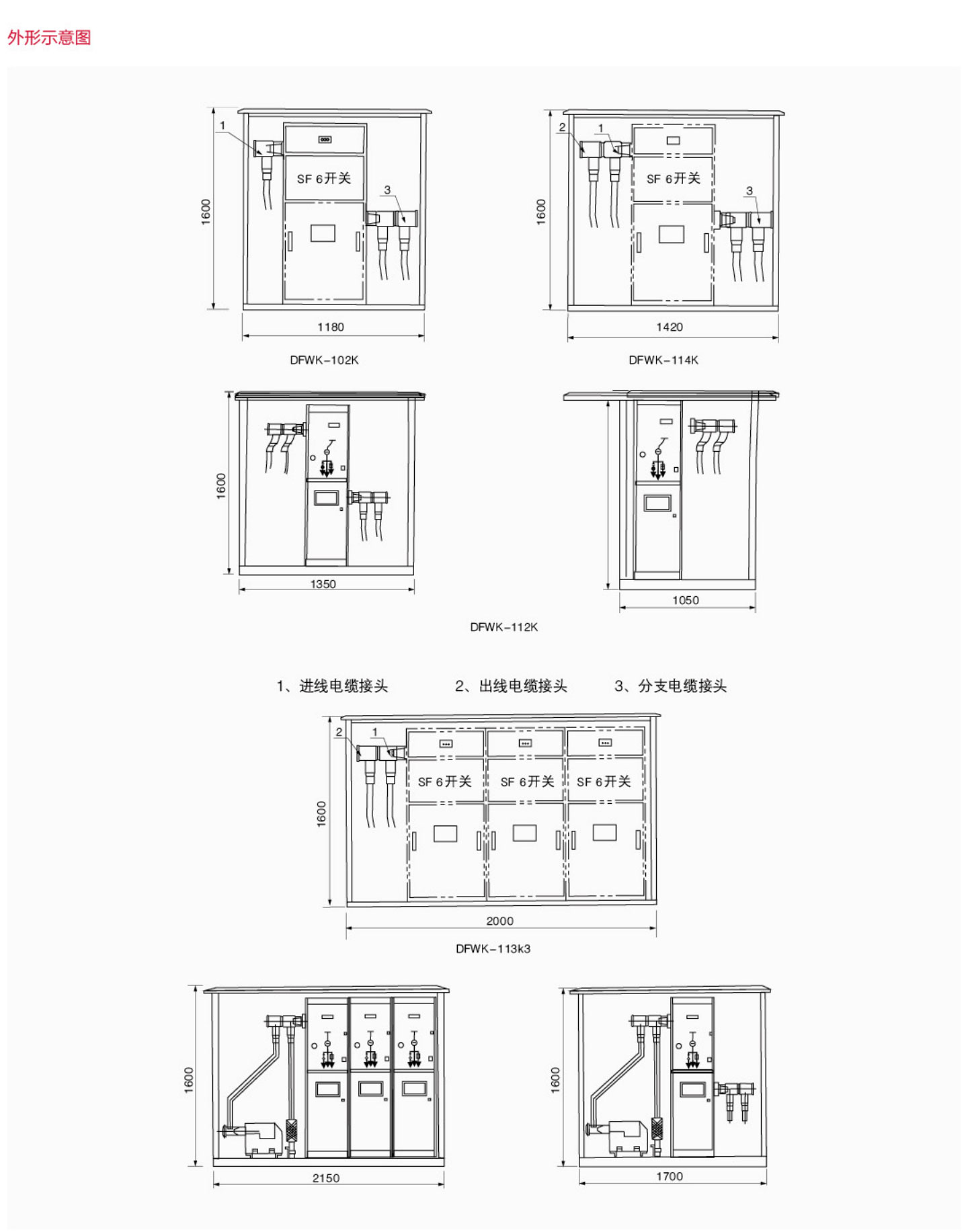
DFWK电缆分接箱(高压开闭所)
采用预制式带电可触摸硅橡胶电缆头,全密封,全绝缘,免维护,可靠保证人身安全;结构紧凑,外形小巧美观,不锈钢双层箱体,使用寿命可达二十年以上;在不影响主网运行的前提下。实现区域停电检修,减小停电范围;可配一台或多台SF6负荷开关。接线方式灵活多样,分支出线最多可达八回路;可选避雷器、短路故障指示器,限流熔断器等,满足用户各种要求。
- 产品信息












产品中心
PRODUCT CENTER
DFWK电缆分接箱(高压开闭所)











